Master Bedroom Addition Ideas
Master Bedroom Addition Ideas is apparently the most private room of the house. It ought to be the place you look for asylum after a hard days worth of effort or just a terrible day. Choosing for bedroom furniture you can get a complete set that includes a bed, matching closets, side tables, dresser and mirror.
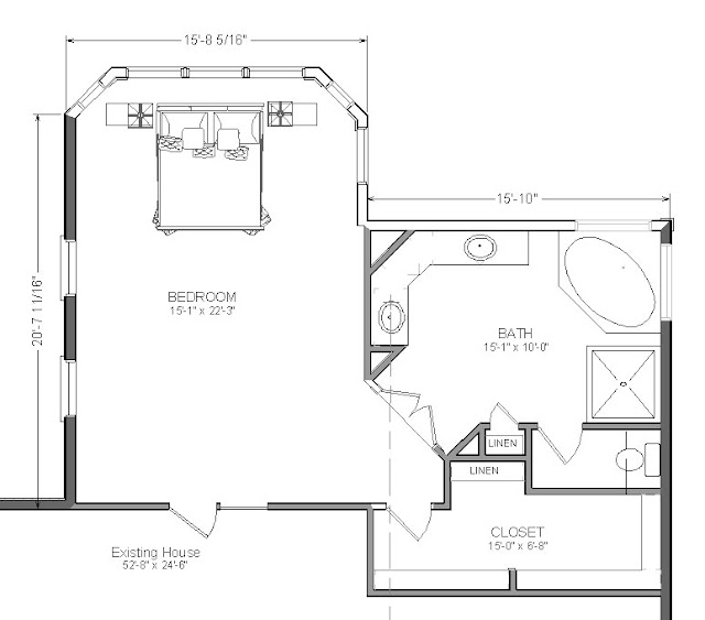
This example images gallery for Master Bedroom Addition Ideas. Most importantly, remember to decorate bedroom the way you want to and not the way others want you to decorate bedroom.














